
Wirtschaftspower und Innovation für die Schweiz – Perspektiven für die Region
- Die geplante Hightech-Zone Würenlingen (HTZ) ist ein zukunftsorientierter Produktionsstandort für Hightech-Unternehmen mit nationaler und internationaler Ausrichtung.
- Sie stärkt die Wettbewerbsfähigkeit der Schweiz in Schlüsselbranchen wie Medtech, Robotik und Materialtechnologie.
- Mit ihrem klaren Fokus auf hochmoderne Produktionsinfrastrukturen für die Märkte von morgen ist die HTZ ein zentraler Bestandteil der Hightech-Strategie des Kantons Aargau und des Schweizerischen Innovationsparks.
- Gleichzeitig leistet sie einen wichtigen Beitrag dazu, technologisches Know-how und hochqualifizierte Arbeitsplätze langfristig in der Schweiz zu sichern.
Warum eine High-Tech-Zone in Würenlingen?
- Mit der unmittelbaren Nähe zum PSI (Forschung) und zum Park Innovaare (Start-up-Förderung) bietet Würenlingen schweizweit einmalige Voraussetzungen für Hightech-Unternehmen.
- Die HTZ stärkt die regionale Wirtschaft und schafft hochqualifizierte Arbeitsplätze. Dies ist wichtig, weil die Arbeitsplätze in den nahen Kernkraftwerken mittelfristig wegfallen.
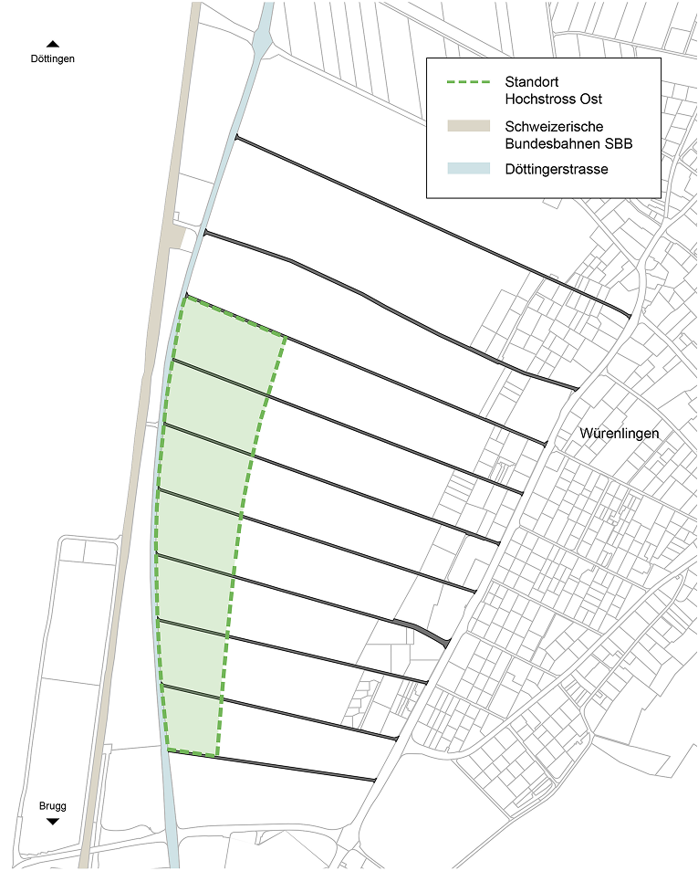
- Die Lage «Hochstross Ost ist das Resultat einer sorgfältigen Prüfung durch Kanton und Gemeinde.
- Der Standort wurde im Richtplan des Kantons festgesetzt.
Das spricht für
die Hightechzone

Teil eines nationalen Innovationsraumes
Die HTZ ergänzt das PSI und den Park Innovaare und stärkt den Standort als Innovationshub mit nationaler Ausstrahlung.

Arbeitsplätze für
kommende Generationen
Die HTZ schafft 800 bis 1200 hochwertige Arbeitsplätze in den Bereichen Industrie und Technologie sowie in der angewandten Forschung. Das gibt neue, attraktive Jobs und Lehrstellen für kommende Generationen.

Motor für die
regionale Wirtschaft
Regionale und lokale Betriebe profitieren direkt von zusätzlichen Aufträgen, neuen Kunden und langfristigen Geschäftsbeziehungen.

Stabile Einnahmen für Gemeinde und Kanton
Es entstehen stabile Steuereinnahmen für Würenlingen und den Kanton Aargau – von den Hightech-Unternehmen und ihren Mitarbeitenden. Die HTZ trägt damit zur langfristigen finanziellen Stabilität der Gemeinde bei.
8. März 2026
Die Bevölkerung von Würenlingen lehnt Beitritt zur Entwicklungsgesellschaft ab
Die nächsten Meilensteine…
2026 - 2027
Durchführung des Teilzonenänderungsverfahrens inkl. öffentlicher Mitwirkung und kantonaler Vorprüfung.
Voraussichtlich Juni 2027
Gemeindeversammlung: Abstimmung für die HTZ notwendige Teiländerung des Bauzonen- und Kulturlandplans
Ab 2029
Realisierung der Erschliessung, Eingabe von Baugesuchen, Umsetzung in Etappen
Frühestens ab 2030
Umsetzung erster Bauprojekte
Ein Generationenprojekt mit nationaler Ausstrahlung
Die HTZ bildet gemeinsam mit dem PSI und dem Park Innovaare eine einzigartige Innovationszone von nationaler Bedeutung. Sie wird sich über einen langen Zeitraum hinweg immer wieder weiterentwickeln und so Spielraum für kommende Generationen schaffen.


Rücksichtsvolle Einbettung in Landschaft und Gemeinde
- Klare räumliche Trennung zwischen Arbeits- und Wohnnutzung
- Sorgfältig gestalteter Übergang zwischen Dorf, Landwirtschaftsland und HTZ
- HTZ wirkt als Lärmschutzriegel gegenüber den Siedlungsgebieten
- Erschliessung über die Kantonsstrasse und nicht durch das Dorf
FAQ
Was ist die Hightech-Zone Würenlingen?
Die HTZ ist ein zukunftsorientierter Produktionsstandort für Hightech-Unternehmen mit nationaler und internationaler Ausrichtung. Sie stärkt die Wettbewerbsfähigkeit der Schweiz in Schlüsselbranchen wie Medtech, Robotik und Materialtechnologie. Die Unternehmen in der HTZ profitieren von einem hochwertigen Forschungs- und Wissensumfeld.
Weshalb entsteht die HTZ gerade in Würenlingen?
Der Standort Würenlingen bietet ein in der Schweiz einzigartiges Umfeld:
In unmittelbarer Nähe befinden sich das Paul Scherrer Institut (PSI) und der Park InnovAARE. Diese Kombination aus Spitzenforschung, Innovation und industrieller Umsetzung ist die zentrale Voraussetzung für einen erfolgreichen Hightech-Standort.
Der Kanton Aargau hat verschiedene Standorte geprüft. Würenlingen erfüllt die fachlichen, räumlichen und infrastrukturellen Anforderungen am besten.
Warum braucht es überhaupt eine Hightech-Zone?
Hightech-Unternehmen haben spezifische Bedürfnisse:
- Nähe zur Forschung
- ausreichend grosse, zusammenhängende Flächen
- gute Erschliessung über die Strasse und mit dem öffentlichen Verkehr
- klare planerische Rahmenbedingungen
Die HTZ schafft genau diesen Raum. Sie ermöglicht die Ansiedlung von Unternehmen, die andernorts kaum geeignete Bedingungen finden würden.
Wie weit ist die Planung heute?
Die HTZ befindet sich in einer frühen, aber entscheidenden Phase. Der Standort ist festgelegt, die Detailplanung erfolgt im Rahmen einer Teiländerung Bau- und Nutzungsordnung BNO «Hightechzone». In diesem Verfahren werden konkrete Vorgaben zu Nutzung, Gebäudehöhen, Erschliessung und Gestaltung definiert.
Warum gibt es noch keine Visualisierungen oder konkrete Baupläne?
Die HTZ wird bewusst schrittweise entwickelt. Erst wenn die planerischen Grundlagen vorliegen, können realistische Visualisierungen und Nutzungskonzepte gezeigt werden. Für die voraussichtlich 2026 stattfindende öffentliche Mitwirkung zur Teiländerung Bau- und Nutzungsordnung BNO «Hightechzone» werden erste Visualisierungen vorliegen.
Welche Art von Unternehmen sollen sich ansiedeln?
Die HTZ richtet sich an innovative Unternehmen mit nationaler und internationaler Ausrichtung, die einen Produktionsstandort für hochentwickelte technologische Produkte suchen. Die Anforderungen an die Unternehmen werden in einem nächsten Schritt weiter präzisiert.
Welche Arten von Unternehmen sind ausgeschlossen?
Ausgeschlossen sind klassische Gewerbe- oder Logistiknutzungen ohne Bezug zu Innovation und Technologie.





